Klein Veldekens is een nieuw woonzorgcentrum met woningen voor begeleid wonen in Geel. Het is ontworpen door Osar en tot stand gekomen als een ‘Invisible Care’-proefproject van de Vlaamse Rijksarchitect. In de hoop verandering teweeg te brengen op het gebied van ziekenhuisarchitectuur, richtten de architecten een vzw en een parallelle bv op, waarin zij tegelijkertijd optreden als opdrachtgever, investeerder en toekomstige exploitant van het woonzorgcentrum. Hoewel de architecten een moedige poging hebben ondernomen om zelf aan de slag te gaan met de projectdefinitie en de rol van de architect te herzien, toont het resultaat het lot van innovatie in de context van de lucratieve ‘grijze goud’-markt. Klein Veldekens fungeert daarom als een belangrijke stap in het leerproces over hoe architectuur kan bijdragen aan de toekomst van onzichtbare zorgverlening.

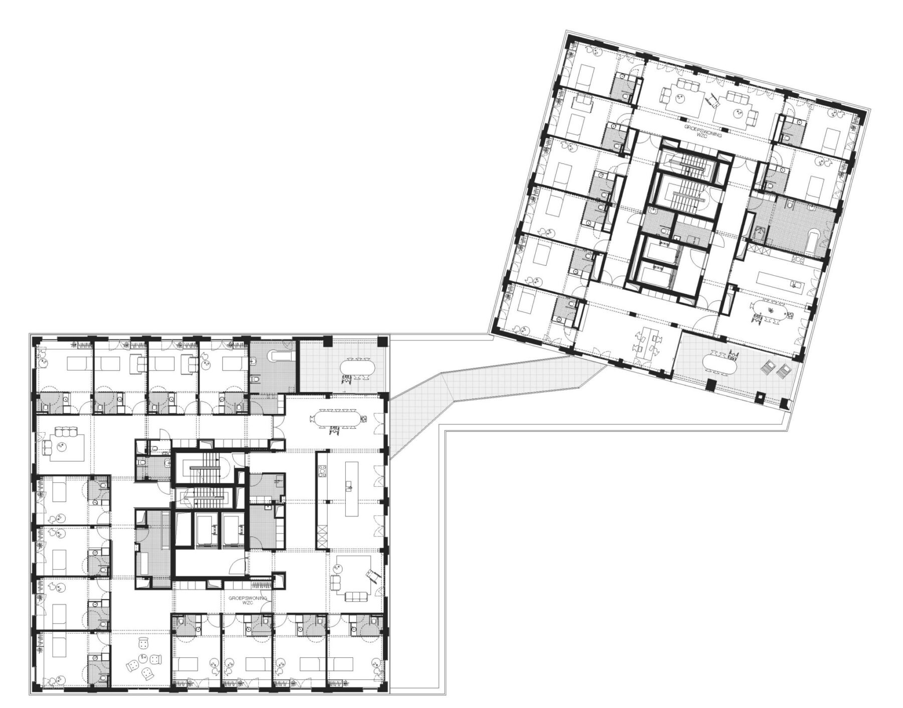
Aan een klein veldweggetje in Geel is een uitgestrekt woonzorgcentrum ontstaan, ontworpen door Osar, dat tegelijkertijd optreedt als opdrachtgever onder de naam van de vzw Astor. Klein Veldekens omvat maar liefst 168 bedden voor woonzorg voor ouderen en 30 bedden voor de geriatrische zorg van mensen met een ernstige mentale en fysieke beperking. 1 Het centrum is gelegen op een open terrein van 3,2 ha te midden van een wijk met eengezinswoningen. De kern wordt gevormd door een robuuste toren van 12 verdiepingen met individuele zorgstudio’s op een plint waarin een restaurant en een dienstencentrum zijn ondergebracht. Verschillende gebouwen zijn verspreid over het terrein, met een dagopvang, een crèche, commerciële ruimtes, zorgappartementen, gastenkamers en zorgwoningen. 1 De 30 bedden voor mensen met een ernstige beperking maken deel uit van een samenwerkingsverband met het Medisch Pedagogisch Instituut MPI Oosterlo.