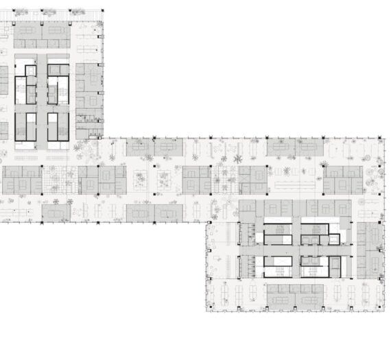
1. Kantoor als stad
Werk- en ontmoetingsplekken worden georganiseerd volgens een stedenbouwkundig plan van straten en pleinen.
1. Kantoor als stad
Werk- en ontmoetingsplekken worden georganiseerd volgens een stedenbouwkundig plan van straten en pleinen.
Unlimited online access to the A+ Library.
Student: for students, researchers and interns.
Institution: for libraries, schools and institutions with multiple readers.
Unlimited online access to the A+ Library and A+ Magazine at home, five times a year.
Everything included in the Print & Digital subscription, plus two free tickets for every TA+LK.
Everything included in the Print & Digital subscription, plus twenty tickets for a TA+LK of your choice and a mention in every issue of the magazine and on this website.
For architectural practices and companies supporting A+.