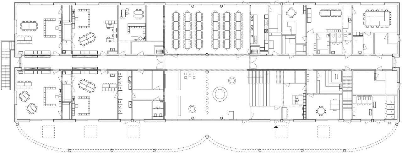
De vraag naar flexibele ruimtes lijkt tegenwoordig schering en inslag binnen het onderwijs. Klassen worden samengevoegd, tussenruimtes gecreëerd en mobiele wanden geïnstalleerd om lokalen te vergroten voor meer samenwerking of juist te verkleinen voor meer concentratie. De school van morgen moet zich kunnen aanpassen aan onzekerheden en toekomstige veranderingen. Maar ondanks die modieuze trends blijft de schoolarchitectuur gebaseerd op vaste structuren, terwijl ze zichzelf telkens opnieuw probeert uit te vinden. De vraag is dan ook: zijn flexibele ruimtes noodzakelijk voor vrije onderwijsmethoden?

Voordat het onderwijs in een gestandaardiseerde schoolinfrastructuur werd georganiseerd, namen leerplekken vele vormen aan. De term ‘school’ komt van het Griekse skholè en verwees naar de vrije tijd die aan studie werd gewijd. In de oudheid vond de kennisoverdracht tussen leraar en leerling plaats binnen filosofische scholen. In de middeleeuwen verweefde het scholastische onderwijs rede en geloof. Rousseaus Emile bleek nauwelijks opgewassen tegen de industriële revolutie van de 19de eeuw. De grote onderwijshervormingen – gratis onderwijs en de beperking van kinderarbeid – gingen gepaard met de ontwikkeling van machtsverhoudingen. Moderne scholen vormden gedisciplineerde individuen die zich voegden naar het ritme en de regels van de industriële samenleving. Het schoolgebouw werd zo een disciplinair instrument, waarbij de architectuur zelf gehoorzaamheid en regelmaat stimuleerde: rechte gangen, gesloten lokalen, netjes geordende bankjes en een duidelijke hiërarchie tussen leraar en leerling.