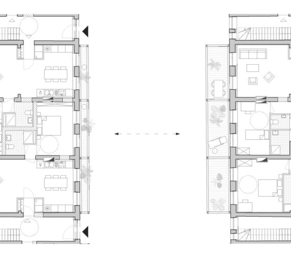
Te midden van de Waalse stedelijke wildgroei bouwde een bewonerscollectief een klein, alternatief cohousingproject, ‘Seucha’ genaamd. Wonen en biologisch tuinieren gaan hand in hand op dit perceel nabij het station. Bovendien bieden de tien rijhuizen samen een interessante staalkaart van ecologische bouwtechnieken en zuinige energieoplossingen.

Als je wat rondhangt op webpagina’s vol architectuurporno, kom je dagelijks wel een architect tegen die opschept over zijn laatste, vrijstaande villa “pal in de natuur”. So eighties! Het discours dat verleidelijke maar ongezonde constructies van klimaatcriminelen met een architectendiploma blijft verheerlijken, behoort tot het verleden. Seucha is in dit opzicht een hoopgevende tegenhanger.