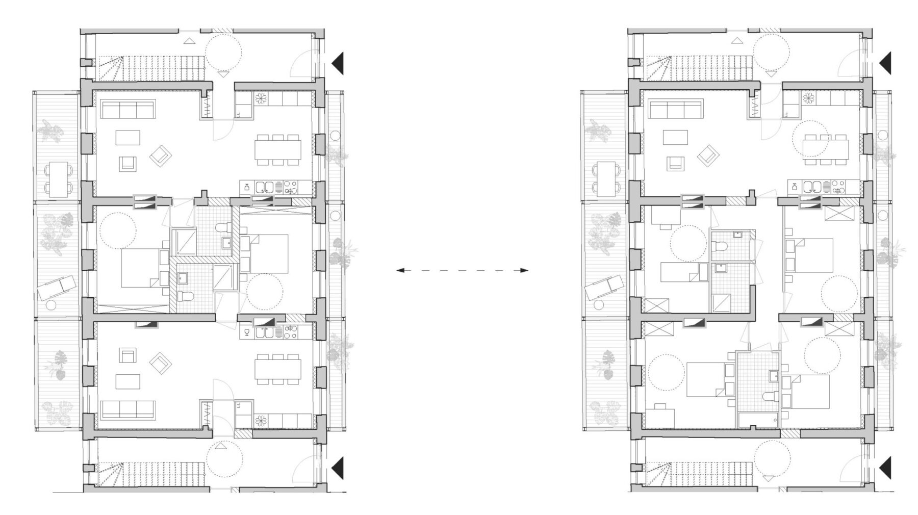
De huisvestings- en klimaatcrisis plaatst de renovatie van sociale woningen uit de 20ste eeuw ongemeen sterk op de agenda. Tal van deze gebouwen zijn namelijk op een keerpunt aanbeland: de levenscyclus van verschillende materialen loopt ten einde, de integratie van woningen in het stedelijk weefsel moet worden herbekeken, de bewoonbaarheid en de functionaliteit van de gebouwen past niet meer bij de demografische samenstelling van de bevolking enzovoort. Maar ook de betrokkenheid van bewoners verdient een bredere reflectie. En dit alles via een versnelde maar doordachte aanpak.

Meer dan de helft van de Brusselse broeikasgasemissies is afkomstig van het energieverbruik van gebouwen. Brusselse woningen zijn overwegend vóór de jaren 1960 gebouwd en verbruiken verhoudingsgewijs veel meer energie dan in andere Europese landen.1 Een derde van de gebouwen is zelfs helemaal niet geïsoleerd. Omdat het huidige renovatietempo lang niet voldoende is, lanceerde het Brussels Hoofdstedelijk Gewest ‘Renolution’, een strategie voor de renovatie van gebouwen. Daarmee wil het drie vliegen in één klap slaan: de druk op de energiefacturen verlichten, de uitstoot van broeikasgassen terugdringen en het wooncomfort van de Brusselaars verbeteren. Bovendien zou de renovatiestrategie kunnen leiden tot de creatie van bijna 8.000 directe en indirecte, diverse, duurzame, vaak niet-delokaliseerbare jobs. 1 Het Belgische energieverbruik ligt 70 procent boven het Europesegemiddelde. https://www.be-reel.be/about-be-reel-en